最終更新日 2023年11月14日
馬塚団地 A棟
PAGE-ID:477
団地情報
団地名 | 馬塚団地 A棟 |
住所 | 越前市広瀬町161-5-2 |
住宅番号 | 11号から43号 |
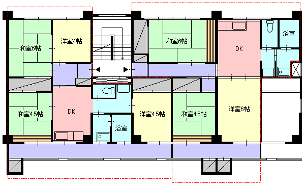
部屋の間取り | Aタイプ(高齢者用):6畳、4畳半、4洋、DK、浴室 |
Bタイプ:6畳、4畳半、4洋、DK、浴室 | |
Cタイプ:6畳、4畳半、4半洋、4洋、DK、浴室 | |
Dタイプ:6畳、4畳半、6洋、DK、浴室 | |
構造 階数 | 中層耐火 4階 |
建設年度 | 昭和48年度 |
戸数 | Aタイプ 2戸 Bタイプ 1戸 |
Cタイプ 6戸 Dタイプ 3戸 | |
駐車場 | 戸数分なし |
小学校 | 神山小学校 |
中学校 | 武生第二中学校 |
給湯 | 電気温水器(浴室、台所、洗面所) |
ガス | プロパン |
外観写真
平面図

